Tämä upea asunto on valmistunut vuonna 2022, ja se tarjoaa modernia asumismukavuutta erinomaisella sijainnilla Torreviejan keskustan tuntumassa. Kaikki on valmiina – asunto on täysin kalustettu, koneistettu ja varusteltu, joten voit muuttaa heti sisään tai aloittaa sen vuokraamisen heti. Asunnolla on myös vuokralisenssi valmiina mikä tekee siitä erinomaisen sijoituskohteen.
Valoisa olohuone ja moderni avokeittiö avautuvat itä–etelä-suuntaiselle terassille, jossa on ihanteelliset olosuhteet nauttia aamukahvista auringonpaisteessa ja illalla lasillisesta viiniä leppeässä merituulessa.
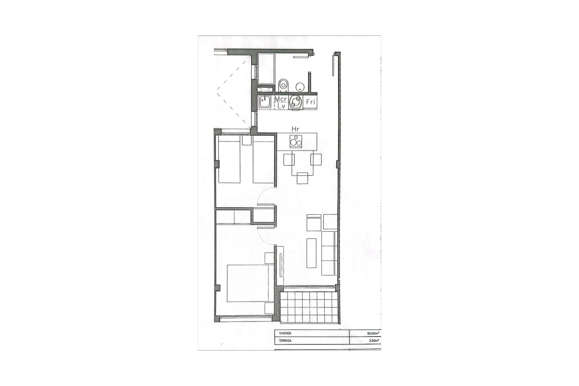
Asunnon varustelu ja mukavuudet:
Taloyhtiön palvelut ja sijainti:
Talo on rauhallinen ja suljettu yhteisö, jossa on vain 10 asuntoa per kerros. Asukkaiden käytössä on uima-allas ja aurinkoterassi suojaisalla sisäpihalla sekä pieni yhteinen kattoterassi.
Sijainti on erinomainen – vain 700 metrin päässä Torreviejan keskustasta, rantabulevardilta ja Playa del Cura -hiekkarannalta. Lähistöllä on kaikki tarvittavat palvelut: ravintoloita, kahviloita, apteekkeja, supermarketteja ja liikkeitä. Bussiasema sijaitsee vain noin 300–400 metrin päässä, ja suosittu Torreviejan tori on 5 minuutin ajomatkan päässä. Myös vesipuisto ja urheilukeskus (tennis ja padel) löytyvät läheltä.
Tämä asunto sopii täydellisesti niin vakituiseksi kodiksi, loma-asunnoksi kuin sijoituskohteeksikin – yhdistelmä laatua, mukavuutta ja erinomaista sijaintia.
📞 Ota yhteyttä 360hometourin asiantunteviin kiinteistönvälittäjiin ja sovi esittely!
Toimistomme sijaitsee Torreviejan pääkadulla Avenida de las Habanerasilla, ja autamme sinua löytämään unelmiesi kodin Espanjasta.
SEO-avainsanat: Torrevieja apartment for sale, modern apartment Torrevieja, Playa del Cura property, Costa Blanca real estate, furnished apartment Spain, investment property Torrevieja, new apartment with pool